

| FSL九游(中国)工程塑料立式泵 |
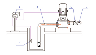
一、概述 FSL工程塑料立式离心泵是一种立式单级单吸离心泵,其整 体结构及过流部件均采用超高分子量聚乙烯(UHMWPE)制作, 具有优良的耐腐蚀、耐磨(居各种塑料之首)及耐冲击性能。 可以输送清液和含有少量固体颗粒的腐蚀性介质。该泵具有 以下主要特点: 1.该泵为立式结构,机泵一体,外形美观,结构紧凑,占地 面积少,泵站土建造价低,若采用户外型电机,则无需泵房 可置于户外使用。 该泵主要适用于化工、冶炼、化纤、钛白、稀土、农药、 造纸、轻工食品、污水处理、环保、消防以及钢铁酸洗等行业 。适用温度为 -50°C~80°C。 二、型号说明
|

→ 地 址:宜兴市丁蜀镇陶都工业园通蠡中路26号
→ 总经理:陈伯生
→ 电 话:0510-87409633 87403572 87403345 87402459
→ 传 真:0510-87426968
→ 邮 箱:pump-cbs@pub.wx.jsinfo.net
→ 网 址:/
→店铺直销:http://yxlgby.1688.com
| 官方移动平台 |
![]() |
| 官方微信平台 |
![]() |
| 维修指导书平台 |
![]() |